8406 E Harry St, Wichita, KS 67207

8406 E Harry St, Wichita, KS 67207

2B1B- Fireplace

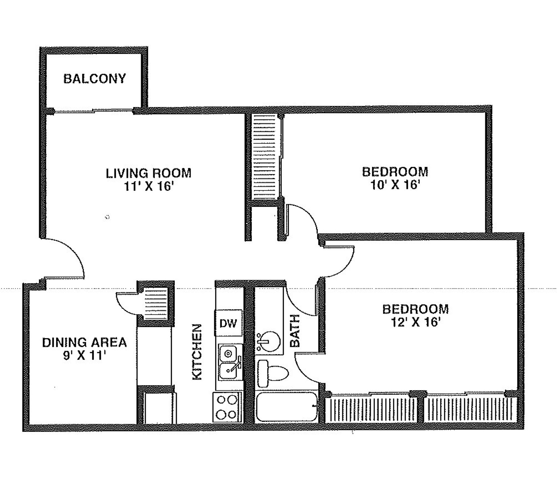
Spacious 2-Bedroom Apartment